PV Anlage, Sauna, 5 oder 6 Zimmer? Alles möglich!

Objektbeschreibung

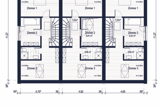
Das hier angebotene Reihenendhaus bietet sechs Zimmer auf einer Wohnfläche von ca. 147 m². Es können insgesamt zwei Stellplätze zusätzlich erworben werden und eine PV-Anlage inkl. Speicher ist auf jedem Haus bereits installiert. Die Lage des Grundstücks mit ihren 13 Einheiten besticht durch die Nähe zum Waldrand, mitten in Bergholz-Rehbrücke. Das Grundstück des REH ist ca. 174 m² groß und bietet eine schöne Terrasse. Im Erdgeschoss befinden sich das Wohn- und Esszimmer des Hauses, ein Gäste-WC und die Küche. Außerdem hat man Zugang zu der nach Süden ausgerichteten Terrasse und dem Garten. Im 1. Obergeschoss befinden sich zwei Schlafzimmer und das Master-Badezimmer mit Badewanne. Im Dachgeschoss finden sich drei weitere Zimmer (änderbar auf zwei) und ein Badezimmer wo auf Wunsch auch ein Wellnessbereich mit Sauna geschaffen werden kann. Es besteht ebenfalls die Möglichkeit gegen Aufpreis einen Kamin zu installieren. Es müssen nicht 6 Zimmer sein! Eine freie Grundrisswahl ist noch möglich, Einzug innerhalb von 4 Monaten nach Beurkundung (oder sofort bei Kauf Musterhaus). Eine PV-Anlage inkl. Speicher ist bei jedem Haus bereits installiert. Zusätzlich können zwei Außenstellplätze für jeweils 10.000 Euro dazu erworben werden. Alle Bilder sind aus dem Musterhaus aufgenommen oder unverbindliche Visualisierungen und können vom Originalbau abweichen.

Ausstattung

  • sicheres und abgeschlossenes Wohnareal, Zugang nur für Bewohner
  • Energieeffizienz/ ökologisch ideal: Luftwärmepumpe und Solaranlage
  • Anschluss Vorbereitung für E-Mobilität
  • Attraktive Nähe zu Potsdam und Berlin
  • Beste Voraussetzungen für Homeoffice: modernste Technik und den Garten vor der Tür Optionale Ausstattung:
  • Kamin
  • Treppenlift
  • Klimaanlage
  • Sauna
  • Individuelle (kostenfreie) Küchenplanung
  • Zimmeranzahl variabel - lieber 5 oder 6 Zimmer?

Sonstiges

Provisionsfrei für den Käufer. Alle gemachten Angaben zu Objekten sind ohne Gewähr und basieren ausschließlich auf Informationen, die uns von unserem Auftraggeber oder von Dritten übermittelt wurden. Wir übernehmen keine Gewähr für die Richtigkeit, die Vollständigkeit, sowie die Aktualität dieser Angaben, insbesondere die Angaben zur Wohnfläche, zur Nutzfläche und zur Aufteilung der Wohn-/Nutzfläche sind von uns nicht durch ein eigenes Aufmaß oder eine eigene Wohnflächenberechnung kontrolliert und die Angaben zum Baujahr sind nicht durch eine Einsicht in die Bauakte überprüft worden. Vermögensschaden-Haftpflichtversicherung abgeschlossen bei Hans John GmbH Versicherungsmakler in Hamburg.

Lage

Diese charmante Immobilie befindet sich in der attraktiven Gemeinde Nuthetal. Sie liegt im Brandenburger Landkreis Potsdam-Mittelmark, nur 30 km südwestlich von Berlin entfernt. Die Landschaft ist geprägt von Wäldern, Seen und Flüssen, die Ihnen ein Gefühl der Ruhe und Entspannung geben. Nuthetal ist eine idyllische Gemeinde, die alle Annehmlichkeiten bietet, die man sich wünschen kann. Es gibt verschiedene Geschäfte und Restaurants, eine Arztpraxis und viele andere Einrichtungen. Außerdem gibt es viele Möglichkeiten, Sport zu betreiben und zu wandern. Die Immobilie befindet sich in einer ruhigen Wohngegend. Der angrenzende Wald bietet Ihnen die Möglichkeit, die Natur zu genießen. Die nächste Bushaltestelle ist nur wenige Gehminuten entfernt. Mit dem Auto sind es nur wenige Minuten zum nächsten Supermarkt, zur nächsten Tankstelle und zu den verschiedenen anderen Einrichtungen. Hier erwartet Sie ein friedliches und familienfreundliches Umfeld. Die Immobilie ist ein perfekter Ort, um Ihren Traum vom Eigenheim zu verwirklichen.
Andersenweg 2B, 14558 Nuthetal

Kontaktieren Sie uns

Was ist die Summe aus 3 und 7?

Ihre Daten werden nur zur Beantwortung Ihrer Anfrage genutzt. Wir geben Ihre Daten nicht weiter. Mehr Informationen zum Umgang mit Nutzer-Daten finden Sie in unserer Datenschutzerklärung.