ruhig gelegenen, gepflegte Doppelhaushälfte in Seenähe

Objektbeschreibung

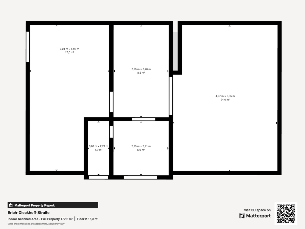
Zum Verkauf steht eine 2020 vollständig renovierte Doppelhaushälfte in Neuruppin. Die Immobilie verfügt über 4, darunter 3 Schlafzimmer und 2 Bäder (1 Bad + 1 Gäste WC). Sie erstreckt sich über 3 Etagen und wurde zuletzt im Jahr 2020 modernisiert. Die Ausstattung ist als zeitgemäß zu bezeichnen und es befindet sich ein Außenstellplatz auf dem Grundstück. Außerdem gehört ein Keller und ein Abstellraum zur Immobilie. Derzeit ist die Doppelhaushälfte seit 2018 vermietet. Der private PKW Stellplatz Nr. 19 ist Sondereingentum und im Verkaufspreis bereits berücksichtigt. Die Doppelhaushälfte wird über eine Gas-Heizung mit Erdgas beheizt. Energieverbrauchskennwert: 103 kWh/(m²*a) Energieeffizienzklasse: D

Ausstattung

Zeitgemäß ausgestattet Im EG: 1 Gäste WC 1 Küche, offen zum Esszimmer 1 Wohnzimmer im 1. OG 1 großes Schlafzimmer 2 Zimmer 1 Bad mit Dusche und Badewanne sowie Fenster im UG Waschraum HWR Arbeitszimmer / Hobbyraum

Sonstiges

  • Das IMMOADDICT Team bietet Ihnen Unterstützung in allen Bereichen rund um den Kauf einer Immobilie. Unser internationales Team spricht fließend Englisch, Deutsch und Französisch, zudem arbeiten wir mit einem Team aus mehrsprachigen Anwälten, Notaren und Finanzierungsberatern zusammen. Um Ihren persönlichen Ansprüchen gerecht werden zu können, bieten wir Ihnen eine große Auswahl an verschiedenen Immobilien. Senden Sie uns einfach ihre Suchkriterien inklusive:
  • Art der gesuchten Immobilie
  • Ihr Budget
  • Bevorzugter Standort
  • Suchen Sie eine Immobilie als Investment oder zum Eigenbedarf? Für Unterstützung bei der Finanzierung Ihrer Immobilie vermitteln wir Ihnen gern einen Finanzierungspartner. Sind Sie an einer Vermietung Ihrer neuen Immobilie interessiert? Hierfür bietet IMMOADDICT Ihnen ein Verwaltungs-Paket für die Sonderverwaltung sowohl für unmöblierte als auch möblierte Vermietungen, sowie einen kompletten Design- und Möblierungsservice, angepasst an ihre persönlichen Vorstellungen. Kontaktieren Sie uns, um mehr Informationen zu erhalten. Alle Angaben stammen vom Verkäufer. IMMOADDICT übernimmt daher keine Haftung für die Richtigkeit der Angaben. Insbesondere die Angaben zur Wohnfläche, zur Nutzfläche und zur Aufteilung der Wohn-/Nutzfläche sind von uns nicht durch ein eigenes Aufmaß oder eine eigene Wohnflächenberechnung kontrolliert worden. Die Angaben zum Baujahr sind nicht durch eine Einsicht in die Bauakte überprüft worden.

Lage

Die Wohnimmobilie befindet sich in einem ruhigen Viertel von Neuruppin, einer idyllischen Stadt, die reich an historischer Architektur und landschaftlicher Schönheit ist. Die Straße zeichnet sich durch eine angenehme Mischung aus Wohnhäusern und Grünflächen aus, was sie besonders attraktiv für Familien und Ruhesuchende macht. Die Lage bietet eine hervorragende Anbindung an den öffentlichen Personennahverkehr. Bushaltestellen sind in unmittelbarer Nähe und ermöglichen eine bequeme Erreichbarkeit der Innenstadt. Die nächste Autobahn ist nur ca. 4 km entfernt, was Pendlern eine rasche Verbindung in andere Städte gewährleistet. Der internationale Flughafen Berlin Brandenburg ist ca. 80 km entfernt und verbindet die Region mit vielen weiteren Zielen. Bildungseinrichtungen sind ein weiterer Pluspunkt der Umgebung: Schulen und Kindergärten sind bequem zu erreichen. Für den täglichen Bedarf sorgen nahegelegene Supermärkte sowie eine Vielzahl an Sport- und Freizeiteinrichtungen, die für alle Altersgruppen geeignet sind. Ein Highlight der Umgebung ist das Universitätsklinikum Ruppin-Brandenburg, das nur knapp 1,5 km entfernt ist und eine hervorragende medizinische Versorgung bietet. Diese ideale Kombination aus urbanem Komfort und naturnaher Lage macht die Immobilie besonders attraktiv für Familien und Berufstätige, die Wert auf Lebensqualität und eine durchdachte Infrastruktur legen.
Erich-Dieckhoff-Straße 3 e , 16816 Neuruppin

Kontaktieren Sie uns

Was ist die Summe aus 9 und 9?

Ihre Daten werden nur zur Beantwortung Ihrer Anfrage genutzt. Wir geben Ihre Daten nicht weiter. Mehr Informationen zum Umgang mit Nutzer-Daten finden Sie in unserer Datenschutzerklärung.