Ihr exklusives Altbau-Domizil in Berlin-Grunewald – Raum für Familien, Mehrgenerationen und Gewerbe

Objektbeschreibung

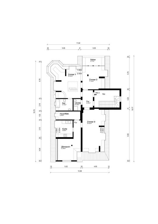
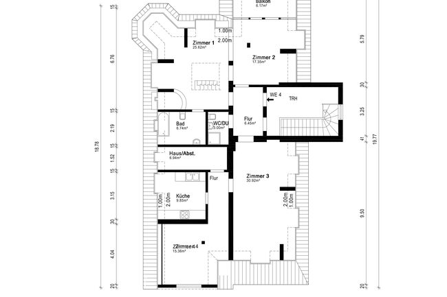
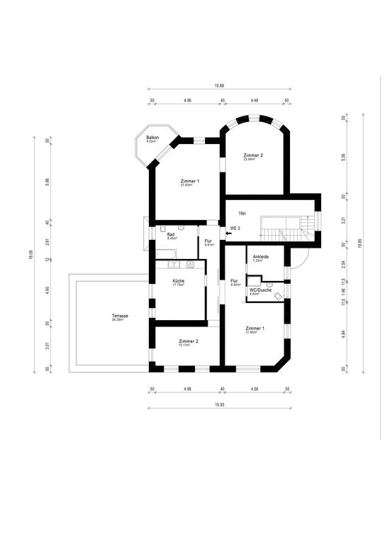
Willkommen in der Winkler Straße, einer Villa, die Geschichte, Eleganz und moderne Wohnkultur in einer der begehrtesten Gegenden Berlins vereint. Dieses denkmalgeschützte Haus aus der Gründerzeit bietet mit seiner großzügigen Raumaufteilung und dem weitläufigen Garten auf 1.336m² das perfekte Zuhause für Familien, Mehrgenerationenhaushalte oder Menschen, die Wohnen und Arbeiten stilvoll miteinander verbinden möchten. Erdgeschoss – Raum für die Familie Das Erdgeschoss ist der lebendige Mittelpunkt des Hauses. Hier verbindet sich das tägliche Leben mit Platz für gemütliche Familienmomente und repräsentative Anlässe. Der großzügige Wohnbereich ist der ideale Ort, um sich nach einem ereignisreichen Tag gemeinsam zu entspannen. Die angrenzende Küche, mit direktem Zugang zum Garten, bietet ausreichend Raum für gemeinsame Mahlzeiten – sei es das schnelle Frühstück oder das große Familienessen am Wochenende. Durch die offene Anordnung der Räume können Kinder spielen, während Eltern und Gäste den Blick in den Garten genießen. Obergeschoss – Der perfekte Rückzugsort für die Familie Im Obergeschoss befinden sich die Schlafzimmer, die als private Rückzugsorte für jedes Familienmitglied dienen. Ob als gemütliches Kinderzimmer, elegantes Elternschlafzimmer oder komfortables Gästezimmer – die Raumaufteilung ermöglicht es, die Zimmer individuell zu gestalten. Die großen Fenster lassen viel Licht in die Räume und schaffen eine entspannte, ruhige Atmosphäre. Auch für Mehrgenerationenhaushalte bietet das Obergeschoss genug Platz, um Privatsphäre für jedes Familienmitglied zu gewährleisten. Dachgeschoss – Unabhängiges Wohnen auf zwei Ebenen Das Dachgeschoss ist als Maisonettewohnung gestaltet und bietet mit seiner offenen Galerie und dem zusätzlichen Balkon einen ganz besonderen Charme. Diese Etage eignet sich perfekt für Familienmitglieder, die sich etwas Unabhängigkeit wünschen, wie erwachsene Kinder oder Großeltern, die in direkter Nähe zur Familie wohnen möchten, aber dennoch ihre eigene Privatsphäre genießen. Die Galerie bietet einen idealen Ort zum Arbeiten, Lesen oder für kreative Projekte. Untergeschoss – Flexibles Wohnen und Arbeiten Das Untergeschoss ist ein Highlight für alle, die Flexibilität in ihrem Zuhause schätzen. Mit einem eigenen Zugang bietet dieser Bereich die Möglichkeit, Wohnen und Arbeiten geschickt zu verbinden. Hier könnte ein stilles Gewerbe entstehen, ohne den Alltag der Familie zu stören – ob als Praxis, Atelier oder Büro. Alternativ lässt sich dieser Bereich auch als eigenständige Wohnung für ein Familienmitglied nutzen, das mehr Unabhängigkeit sucht. Die Möglichkeiten sind vielfältig und bieten Flexibilität für die unterschiedlichsten Lebenssituationen. Garten – Eine Oase der Ruhe für alle Generationen Der weitläufige Garten ist der perfekte Ort für entspannte Nachmittage im Freien. Hier haben Kinder genug Platz zum Spielen, während die Erwachsenen auf der Terrasse die Ruhe genießen können. Der Garten bietet Raum für gemeinsame Feste und Rückzugsmöglichkeiten für jedes Familienmitglied – sei es ein kleines Gemüsebeet, eine gemütliche Sitzecke oder eine Spielfläche für die Jüngsten. Ein Ort, an dem die ganze Familie zusammenkommt und unvergessliche Momente schafft. Diese eindrucksvolle Villa in Berlin-Grunewald ist mehr als nur ein Zuhause. Sie bietet Raum für Familien, die das Leben in vollen Zügen genießen möchten, für Mehrgenerationenhaushalte, die in engem Kontakt leben, aber dennoch genügend Privatsphäre haben wollen, sowie für Interessenten, die das Untergeschoss als stilles Gewerbe nutzen möchten. Die einzigartige Verbindung von historischer Eleganz, modernem Komfort und flexiblen Nutzungsmöglichkeiten macht dieses Anwesen zu einem echten Juwel in einem der exklusivsten Viertel Berlins.

Sonstiges

  • Das Team von Black Label Immobilien bietet Ihnen Unterstützung in allen Bereichen rund um den Kauf einer Immobilie. Unser internationales Team spricht fließend Englisch, Deutsch, Französisch und Mandarin, zudem arbeiten wir mit einem Team aus mehrsprachigen Anwälten, Notaren und Finanzierungsberatern zusammen. Um Ihren persönlichen Ansprüchen gerecht werden zu können, bieten wir Ihnen eine große Auswahl an verschiedenen Immobilien. Senden Sie uns einfach ihre Suchkriterien inklusive:
  • Art der gesuchten Immobilie
  • Ihr Budget
  • Bevorzugter Standort
  • Suchen Sie eine Immobilie als Investment oder zum Eigenbedarf? Für Unterstützung bei der Finanzierung Ihrer Immobilie vermitteln wir Ihnen gern einen Finanzierungspartner. Sind Sie an einer Vermietung Ihrer neuen Immobilie interessiert? Hierfür bietet Black Label ein Verwaltungs-Paket sowohl für unmöblierte als auch möblierte Vermietungen, sowie einen kompletten Design- und Möblierungsservice, angepasst an ihre persönlichen Vorstellungen. Kontaktieren Sie uns, oder besuchen Sie uns in unserem Büro, um mehr Informationen zu erhalten. Alle Angaben stammen vom Verkäufer. Die Firma BLP Investments GmbH übernimmt daher keine Haftung für die Richtigkeit der Angaben. Insbesondere die Angaben zur Wohnfläche, zur Nutzfläche und zur Aufteilung der Wohn-/Nutzfläche sind von uns nicht durch ein eigenes Aufmaß oder eine eigene Wohnflächenberechnung kontrolliert worden. Die Angaben zum Baujahr sind nicht durch eine Einsicht in die Bauakte überprüft worden.

Lage

Die Winkler Straße befindet sich in Berlin-Grunewald, einem der nobelsten und ruhigsten Wohnviertel der Stadt. Geprägt von prachtvollen Villen, großen Gärten und einer grünen Umgebung, bietet diese Lage ein exklusives Wohngefühl für Familien, Mehrgenerationenhaushalte oder Menschen, die eine Kombination von Wohnen und Arbeiten in einer ruhigen Umgebung suchen. Der Stadtteil Grunewald gehört zum Bezirk Charlottenburg-Wilmersdorf. Diese Gegend hat sich seit dem 19. Jahrhundert als bevorzugter Wohnort der wohlhabenden Berliner Bevölkerung etabliert. Das Viertel ist bekannt für seine großflächigen Grundstücke, die Ruhe und Abgeschiedenheit bieten, ohne auf eine gute Anbindung und Infrastruktur verzichten zu müssen. Was die Anbindung betrifft, liegt die Villa verkehrsgünstig. Der S-Bahnhof Grunewald ist in wenigen Minuten erreichbar, von wo aus Sie schnell in die Innenstadt oder nach Potsdam gelangen. Für Autofahrer bietet die nahe gelegene AVUS (A115) sowie der Stadtring A100 hervorragende Verbindungen in alle Teile der Stadt. Die zentrale Lage ermöglicht zudem eine schnelle Anbindung an den Kurfürstendamm, eine der bekanntesten Einkaufsstraßen Berlins, wo Sie zahlreiche exklusive Boutiquen und Geschäfte finden. In der Nähe der Winkler Straße gibt es mehrere Schulen und Kindergärten, die diesen Standort für Familien besonders attraktiv machen. Die Grunewald-Grundschule und das renommierte Walther-Rathenau-Gymnasium bieten hochwertige Bildung für Kinder und Jugendliche. Auch internationale Schulen wie die Berlin British School sind von hier aus gut zu erreichen. Für die Kleinsten stehen Kindergärten wie die Kindergruppe Hasensprung bereit, die eine liebevolle Betreuung in unmittelbarer Nähe bietet. Einkaufsmöglichkeiten für den täglichen Bedarf finden sich in der Umgebung, darunter ein gut sortierter Rewe-Markt. Für größere Shoppingtouren ist der Kurfürstendamm, mit seinen vielfältigen Boutiquen und Geschäften, nur eine kurze Autofahrt entfernt. Zudem laden zahlreiche Restaurants und Cafés in Grunewald sowie am nahegelegenen Kurfürstendamm zu kulinarischen Erlebnissen ein, von gehobener Küche bis zu entspannten Cafés. Die Umgebung bietet zahlreiche Freizeit- und Erholungsmöglichkeiten. Der Grunewald, mit seinen weitläufigen Wald- und Wasserflächen, darunter der Koenigssee und der Dianasee, lädt zu Spaziergängen, Jogging oder entspannten Nachmittagen am See ein. Für Sportbegeisterte stehen Tennis- und Reitvereine in der Nähe zur Verfügung, während der Teufelsberg ein beliebter Ort für Wanderungen und historische Erkundungen ist. Die ruhige, grüne Umgebung bietet nicht nur Erholung, sondern auch Raum für sportliche Aktivitäten oder entspannte Stunden mit der Familie im Freien. Insgesamt bietet die Winkler Straße eine exklusive Lage in einem der schönsten Viertel Berlins, mit idealen Voraussetzungen für Familien, Mehrgenerationenhaushalte und Menschen, die in einer ruhigen, aber gut angebundenen Umgebung leben und arbeiten möchten.
Winkler Straße 13, 14193 Berlin

Kontaktieren Sie uns

Was ist die Summe aus 5 und 8?

Ihre Daten werden nur zur Beantwortung Ihrer Anfrage genutzt. Wir geben Ihre Daten nicht weiter. Mehr Informationen zum Umgang mit Nutzer-Daten finden Sie in unserer Datenschutzerklärung.